Prix 105 000€
Ville/Code postal
Type d'annonce Agence Offre
Constructible Constructible
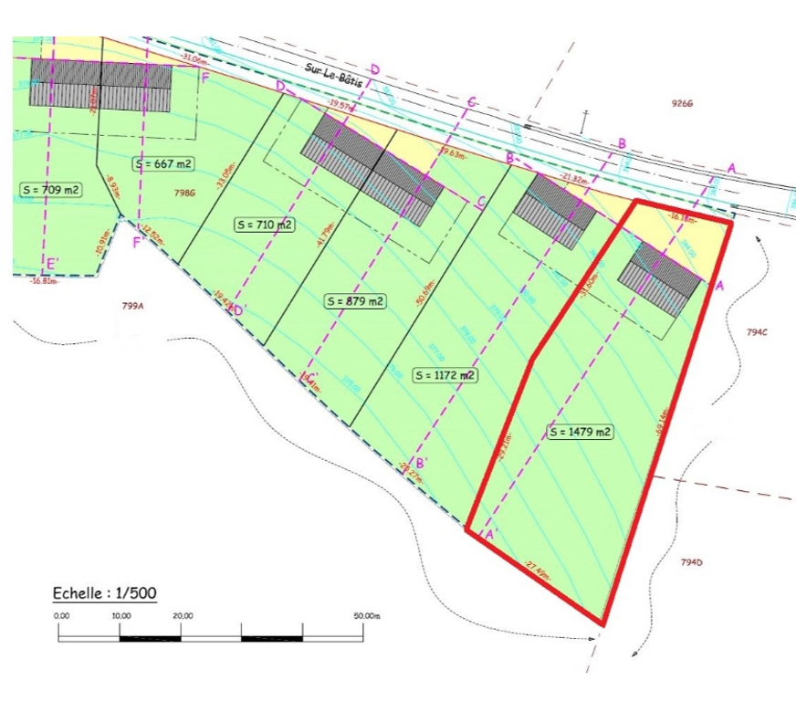
Surface 1479 m²
Description

Terrain à bâtir d’une superficie de 14 ares et 79 centiares, pour la construction d’une habitation 4 façades.

LOT 7 : 14a 79ca

Orientation arrière : SUD

Largeur parcelle : +- 16,15 mètres

Profondeur parcelle : +- 60,81 à +- 69,14 mètres

Eau et électricité présents dans la rue.

Pour construction d’une habitation 4 façades.

Bonne situation avec belle vue dégagée, dans une rue avec peu de passage, à proximité de la N4 et de lieux touristiques comme Saint-Hubert, La Roche, Bastogne, …

Prix demandé : 105.000 €

Les informations et superficies ci-dessus sont données à titre indicatif et sont non contractuelles.

N'hésitez pas à nous contacter pour plus d'informations :

Ard’Immo & Conseils – 6880 BERTRIX

061/611.222 – 0491/25.98.89 - 0474/88.56.10 – [email protected]

Méfiez-vous des arnaques. Consultez nos conseils de sécurité afin de les éviter

Contacter cet annonceur

Mentionnez que vous l'avez trouvé sur Vivastreet

Ortheuville : terrain à batir de 14a 79ca.

  • Constructible
  • € p/h incall
  • Laneuville-au-Bois

Un souci avec cette annonce ?

Signalez-nous le problème, nous la vérifierons en conséquence.

Envoyer un email

Entrez votre adresse email pour contacter l'annonceur

Ard'Immo & Conseils

Adresse: rue de la Gare 9 - 6880 Bertrix

Photos Vivastreet Vencimont : spacieuse maison, jardin, carport, 3ch.

Bourseigne-Neuve 1 100€

Photos Vivastreet Bertrix : bel appartement duplex avec terrasse, 1 chambre.

Bertrix 700€

Photos Vivastreet Bievre : bel appartement avec grande terrasse, 2ch, parking

Baillamont 780€

Photos Vivastreet 6887 HERBEUMONT : Beau terrain de 22a30ca avec belle vue.

Gribômont 65 000€

Photos Vivastreet Bièvre: magnifique propriété, 8ch, 8sdb, piscine, ...

Baillamont 1 450 000€

Photos Vivastreet 6800 LIBRAMONT : bel appartement, 3ch, 2sdb, parking.

Libramont 245 000€

Voir toutes les annonces ( 33 annonces ) Membre depuis le: 28/08/2024

Vous n'avez pas trouvé votre bonheur ?

< Retour aux résultats

Contacter cet annonceur

Mentionnez que vous l'avez trouvé sur Vivastreet

Ortheuville : terrain à batir de 14a 79ca.

  • Constructible
  • € p/h incall
  • Laneuville-au-Bois

Donnez votre avis