Ortheuville : terrain à bâtir, 14a 79ca.






Prix | 105 000€ |
Ville/Code postal | Luxembourg Tenneville Laneuville-au-Bois |
Type d'annonce | Agence Offre |
Constructible | Constructible |
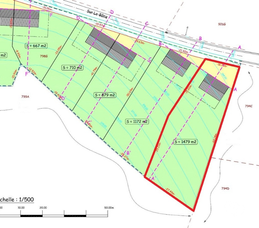
Surface | 1479 m² |
Terrain à bâtir d’une superficie de 14 ares et 79 centiares, pour la construction d’une habitation 4 façades.
LOT 7 : 14a 79ca
Orientation arrière : SUD
Largeur parcelle : +- 16,15 mètres
Profondeur parcelle : +- 60,81 à +- 69,14 mètres
Eau et électricité présents dans la rue.
Pour construction d’une habitation 4 façades.
Bonne situation avec belle vue dégagée, dans une rue avec peu de passage, à proximité de la N4 et de lieux touristiques comme Saint-Hubert, La Roche, Bastogne, …
Prix demandé : 105.000 €
Les informations et superficies ci-dessus sont données à titre indicatif et sont non contractuelles.
N'hésitez pas à nous contacter pour plus d'informations :
Ard’Immo & Conseils – rue de la Gare 9 à 6880 Bertrix
061/611.222 - 0491/25.98.89 - 0474/88.56.10
Ortheuville : terrain à bâtir, 14a 79ca.
- Constructible
- € p/h incall
- Laneuville-au-Bois
Envoyer un email
Envoyer un message
Adresse email de l'annonceur
En contactant cet annonceur, vous acceptez les Conditions Générales d'Utilisation de Vivastreet.
Gagnez du temps à l'avenir
Accédez instantanément aux adresses email des annonceurs avec votre compte Vivastreet.
Créer un compteVous n'avez pas trouvé votre bonheur ?
< Retour aux résultatsEnvoyer un message
Adresse email de l'annonceur
En contactant cet annonceur, vous acceptez les Conditions Générales d'Utilisation de Vivastreet.
Gagnez du temps à l'avenir
Accédez instantanément aux adresses email des annonceurs avec votre compte Vivastreet.
Créer un compte